Toggle navigation
网站首页
建筑铝型材
工业铝型材
装饰结构铝型材
异型材
工程案例
恒延风采
联系我们
打造铝业精品 铸就行业先锋
凭借强大的研发能力以及对卓越品质的执著追求,不断开拓创新,公司在全国各省、市及地区建立了广泛而稳定的销售网络,以满足各地区客户对高品质产品的需求。
了解更多 >
建筑铝型材
幕墙系列(
4
)
隔热注胶系列(
4
)
断桥隔热系列(
4
)
钢纱一体窗(
5
)
推拉窗系列(
9
)
平开窗系列(
4
)
百叶窗系列(
2
)
隐形纱窗系列(
2
)
门系列(
9
)
栏杆系列(
2
)
角码系列(
1
)
角铝系列(
1
)
无框阳台系列(
1
)
扣板系列(
1
)
方管系列(
2
)
圆管系列(
3
)
纱料合集系列(
3
)
联系方式
湖北恒延铝业有限公司
地址:湖北省襄阳市深圳工业园无锡路1号
电话:0710-2958888
手机:13774158601
E-mail:xfhyly2958888@163.com
网站:
当前位置:
首页
>
建筑铝型材
>
幕墙系列
幕墙系列
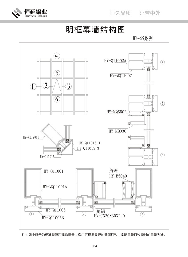
65幕墙明框110~160系列
65隔热幕墙明框110~160系列
65幕墙隐框110~180系列
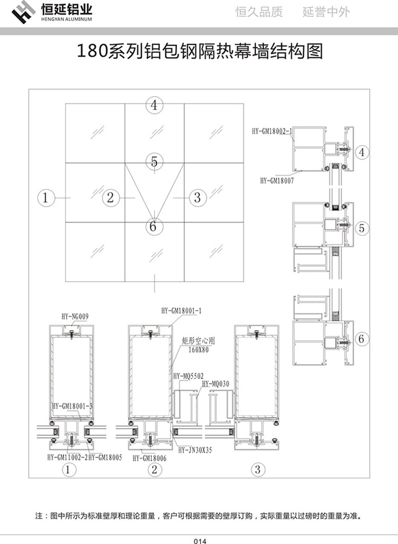
180铝包钢隔热幕墙系列
共1 页 页次:1/1 页
首页
上一页
1
下一页
尾页
转到
1